Overview
- Condominium
- Property Type
- 2
- Bathroom
- PR9116613
- MLS ID
Description
PREMIUM CORPORATE OFFICE SUITE | Prime Commercial Location in Old San Juan.
A exceptional opportunity to lease a private, full-floor office suite in one of the few commercial-only buildings in Old San Juan. Prominently located opposite the US Federal Courthouse, and directly across from Doña Fela parking garage, plus a cargo/drop-off zone at building entrance, this address offers unparalleled accessibility for staff and clients—a favorable advantage in the historic zone.
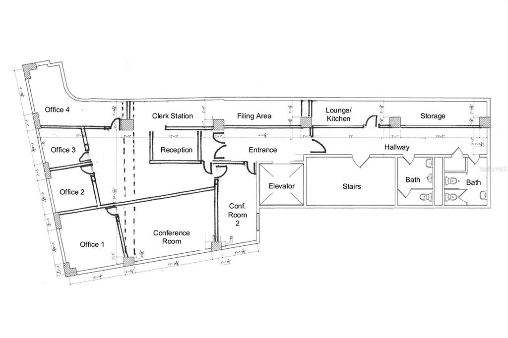
This fully remodeled, turn-key office occupies the entire mezzanine level of the building. Access to this floor is key-controlled via elevator, ensuring exclusive entry for authorized personnel only. Inside, the space has been thoughtfully renovated with contemporary finishes: elegant glass partitions defining private conference rooms and meeting areas; recessed lighting and sleek tile flooring throughout; central A/C (5-ton unit); fully furnished and move-in ready with a corporate aesthetic.
Ideal for corporate tenants seeking a private, professional environment in the heart of Old San Juan - particularly law firms, consulting offices, or financial services firms. Located just steps from the U.S. Federal Courthouse, major banks, and government institutions, this office combines privacy, security, and accessibility in one of Puerto Rico’s most distinguished business addresses.
Layout includes: reception, clerk station, 4 offices, 2 conference rooms, filing area, lounge/kitchen, 2 bathrooms, and utility room.
Rent includes: water, high-speed internet, CAM, property taxes, and condo insurance. Not included: electricity & A/C maintenance.
Address
- Address GALLARDO OFFICE BLDG.
- State PR
- City San Juan
Details
-
Property ID HZPR9116613
-
Property Type Condominium
-
Price $6,000
-
Property Size 1871 Sq Ft
-
Bathrooms 2
-
Property Status For Rent
Mortgage Calculator
-
Down Payment
-
Loan Amount
-
Monthly Mortgage Payment
-
Property Tax
-
Home Insurance
-
PMI
-
Monthly HOA Fees
360° Virtual Tour
Contact Information
View ListingsListing Provided By:
-
MLS Agent Coral Bouret
-
MLS Agency BOURET REAL ESTATE
Similar Listings
MCLEARY, SAN JUAN, PR, 00911
- $4,995,000
- Beds: 5
- Baths: 7
- 5900 Sq Ft
- Condominium
CANDELERO DRIVE, HUMACAO, PR 00791, PR, 00791
- $525,000
- Beds: 2
- Baths: 2
- 1300 Sq Ft
- Condominium
PR 773, BARRANQUITAS, PR, 00794
- $2,500,000
- Bath: 0
- Mixed Use
PLAYA AZUL, TOWER 3, LUQUILLO, PR, 00773
- $1,900
- Beds: 2
- Bath: 1
- 965 Sq Ft
- Condominium




