Overview
- Land
- Property Type
- PR9115671
- MLS ID
Description
This exceptional industrial lot is located in Bayamón’s prime industrial district, strategically positioned near major ports and key distributors including Goya and Puma Energy, among others.
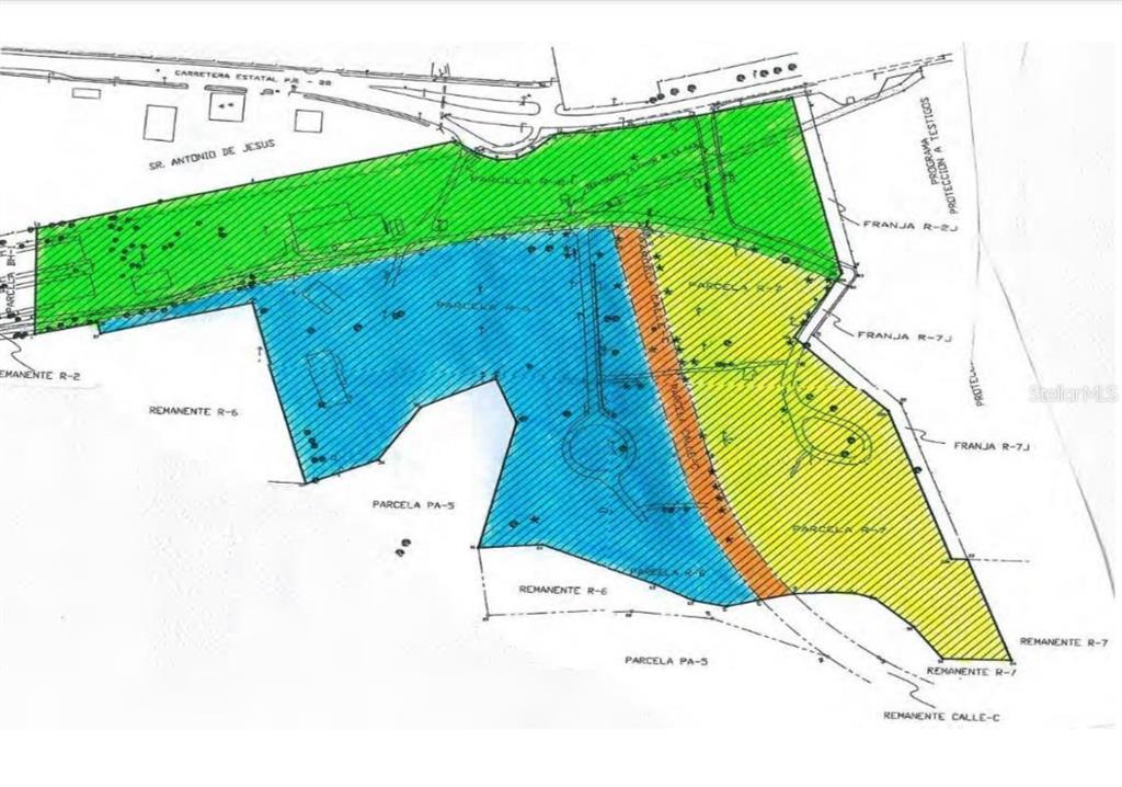
With Heavy Industrial (I-P) zoning and a total registered area of 114,223.77 square meters (28.19 acres) across four segregated parcels, the site provides extraordinary flexibility for large-scale development.
Its strategic location, connectivity, and ample space make it ideal for distribution centers, logistics hubs, manufacturing facilities, or industrial warehouses seeking proximity to San Juan’s metropolitan market.
Highlights:
• Prime Bayamón industrial location near major distributors and infrastructure
• Heavy Industrial (I-P) zoning
• Total area: 114,223.77 m² (28.19 acres)
• Subdivided into 4 registered parcels
• Ideal for logistics, warehousing, or manufacturing projects
• $148.83 a square meter
Address
- Address CARRETERA 2, KM 3.1
- State PR
- City Bayamón
Details
-
Property ID HZPR9115671
-
Property Type Land
-
Price $17,000,000
-
Land Area 26.9738 Acres
-
Property Status Active
Mortgage Calculator
-
Down Payment
-
Loan Amount
-
Monthly Mortgage Payment
-
Property Tax
-
Home Insurance
-
PMI
-
Monthly HOA Fees
Contact Information
View ListingsListing Provided By:
-
MLS Agent Meilyn Guzman Ensenat
-
MLS Agency MEILYN GUZMAN ENSENAT
Similar Listings
A STREET, HACIENDA CARABALI, LUQUILLO, PR, 00773
- $3,700,000
- Beds: 6
- Baths: 6
- 5120 Sq Ft
- Single Family Residence
ASHFORD AVENUE, CONDADO, PR, 00907
- $2,250
- Bed: 0
- Bath: 1
- 500 Sq Ft
- Apartment
CONDOMINIO ISLETA MARINA, FAJARDO, PR, 00738
- $1,000
- Bed: 1
- Bath: 1
- 700 Sq Ft
- Apartment
LYDIA OESTE, TOA BAJA, PR, 00949
- $1,200
- Beds: 2
- Bath: 1
- 1500 Sq Ft
- Apartment


